Otthon, ahol a tér és a csend talákozik

107 Nyomtatás Ajánlás Facebook

Eladó napfényes, 80 m²-es, kétszintes családi ház Tamásiban

Eladásra kínálunk egy napfényes, 80 m²-es, kétszintes családi házat Tamásiban, csendes, rendezett környezetben, mindössze néhány percre a termálfürdőtől és a városközponttól.
Az ingatlan jó alapokkal rendelkezik, így kiváló lehetőség azok számára, akik saját igényeik szerint szeretnék kialakítani otthonukat.

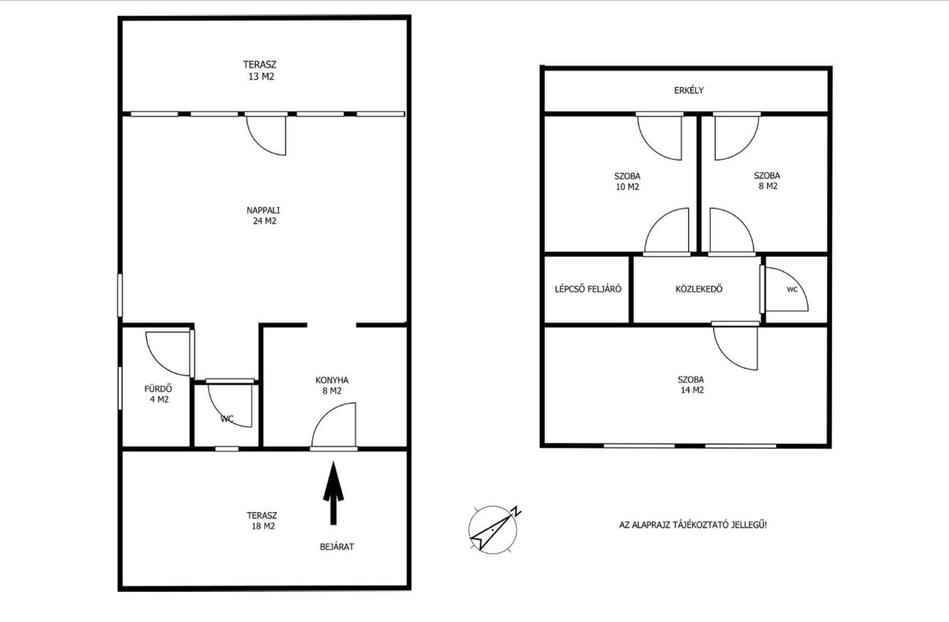
Elrendezés:
nappali + konyha
1 hálószoba
2 félszoba
1 fürdőszoba (felújítandó)
2 külön WC

Főbb jellemzők:
szigetelt épület
klímaberendezés
nappaliban kandalló
világos, jól használható terek
fedett autóbeállási lehetőség
csendes, nyugodt környezet
termálfürdő közelsége

Kiemelten praktikus extra:
12 m² külön tároló

Kinek ideális:
családoknak
pároknak
home office-ban dolgozóknak
befektetési célra (kiadás / értéknövekedés)

Elhelyezkedés:
A termálfürdő közelsége különleges életminőséget biztosít: pihenés és kikapcsolódás néhány perc sétára.

Éttermek, pékség és alapvető szolgáltatások a közelben elérhetők. A buszpályaudvar gyalog kb. 5 perc.

Ne feledjük:
„Szigetelt alapok, kandallós hangulat, nyugodt élet – termálfürdő közelében.”

Amennyiben felkeltette érdeklődésed az ingatlan, kérlek, keress bizalommal, egyeztessünk időpont.

Sunny, 80 m², two-story family house for sale in Tamási

We offer for sale a sunny, 80 m², two-story family house in Tamási, in a quiet, tidy environment, just a few minutes from the thermal bath and the city center.
The property has good foundations, so it is an excellent opportunity for those who want to design their home according to their own needs.

Layout:
living room + kitchen
1 bedroom
2 half-rooms
1 bathroom (to be renovated)
2 separate toilets

Main features:
insulated building
air conditioning
fireplace in living room
bright, well-usable spaces
covered parking space
quiet, calm environment
near thermal bath

Extremely practical extra:
12 m² separate storage

Ideal for:
families
couples
home office workers
for investment purposes (expense / value increase)

Location:
The proximity of the thermal bath provides a special quality of life: rest and relaxation a few minutes walk away.

Restaurants, bakery and basic services are available nearby. The bus station is approx. 5 minutes on foot.

Let's remember:
"Insulated foundations, fireplace atmosphere, peaceful life - near the thermal bath."

If you are interested in the property, please contact us with confidence and let's arrange a time.

Dér Attila

Dér Attila

Ingatlanértékesítő
Siófok
+36 (30) 339 6019
Észrevétel a hirdetéssel kapcsolatban
Egy ingatlanos naplója